Immobiliensuche

DETAILSUCHE
Büro
Industrie/Logistik
Geschäftsfläche
Anlageobjekt
Wohnung
Haus
Grundstück
Kauf      Miete
Wien
Wien Umgebung







































Burgenland
Niederösterreich
































Kärnten
Oberösterreich

























Salzburg
Steiermark






















Tirol
Vorarlberg


















Ausland
Fläche:
von bis
Preis:
von bis
Preis pro m²:
von bis
Zimmer:
von bis
Details




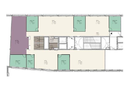
Austria Campus BT 3 - Bezugsfertige top moderne Büroflächen
Objektnummer 353/11157
Objektart Büro
Adresse 1020 Wien, Leopoldstadt
Nutzfläche 548,00 m²
Stock 3
Bruttomiete inkl. 20% USt. € 15.223,44
Nettomiete € 10.549,00
BK Netto € 2.137,20
USt. € 2.537,24
Energieausweis Klasse A, HWB 19,00 kWh/m²a
Der AUSTRIA CAMPUS bietet mehr als 200.000 m2 Büroflächen. Neben der ausgezeichneten Verkehrsanbindung wurde vor allem auf die im Campus verfügbare Infrastruktur und Nahversorgung Wert gelegt.

Die im Campus 3 nun verfügbaren Flächen sind äußerst hochwertig und modern ausgestattet.

Ausstattung
- Blend- und Sonnenschutz
- Hochwertige Teppichfliesen
- Doppelboden inkl. Bodentanks und IT-Verkabelung / WLAN installiert
- Pendelleuchten Büro, Downlights Gangbereich
- Glaswände optional
- Raumhöhe: 3,00 m (Büro) und 2,50 - 2,60 m (Gang)
- 24 Stunden technischer Bereitschaftsdienst
- Mechanische Be- und Entlüftung und öffenbare Fenster
- Energiesparende Bauteilkühlung (Bauteilaktivierung)
- Tiefgarage mit E-Ladestationen (Kurz- und Dauerparker)

Miete Stellplätze: EUR 200/Stk.
Das Objekt konnte
nicht geokodiert
werden.
Ansprechpartner

Milica Ljubojevic
Mobil: 00436764313691
Diese E-Mail-Adresse ist vor Spambots geschützt! Zur Anzeige muss JavaScript eingeschaltet sein!
Provided by TopREAL
 
     
Vorname
Nachname
E-Mail
Telefon
Straße
PLZ/Ort
Bemerkungen
 

Wir nutzen Cookies auf unserer Website. Einige von ihnen sind essenziell für den Betrieb der Seite, während andere uns helfen, diese Website und die Nutzererfahrung zu verbessern (Tracking Cookies). Sie können selbst entscheiden, ob Sie die Cookies zulassen möchten. Bitte beachten Sie, dass bei einer Ablehnung womöglich nicht mehr alle Funktionalitäten der Seite zur Verfügung stehen.