Immobiliensuche

DETAILSUCHE
Büro
Industrie/Logistik
Geschäftsfläche
Anlageobjekt
Wohnung
Haus
Grundstück
Kauf      Miete
Wien
Wien Umgebung







































Burgenland
Niederösterreich
































Kärnten
Oberösterreich

























Salzburg
Steiermark






















Tirol
Vorarlberg


















Ausland
Fläche:
von bis
Preis:
von bis
Preis pro m²:
von bis
Zimmer:
von bis
Details




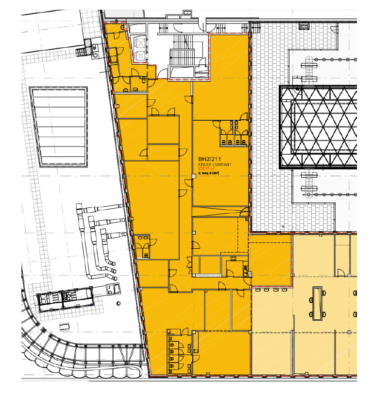
Ehemalige Kindergartenfläche mit Dachterrasse im DZ
Objektnummer 353/11148
Objektart Büro
Adresse 1220 Wien
Nutzfläche 670,17 m²
Bruttomiete inkl. 20% USt. € 14.411,34
Nettomiete € 6.701,70
BK Netto € 5.307,75
USt. € 2.401,89
Energieausweis Klasse B, HWB 42,00 kWh/m²a
Direkt im Donauzentrum gelegen, gelangt diese ehemaliger Kindergartenfläche in die befristete Vermietung.
Der Zugang zur Fläche erfolgt über zwei Lifte, alternativ ist die Fläche über wenige Stufen auch direkt vom Parkhaus aus erschlossen.

Die Fläche ist derzeit noch als Kindergarten ausgebaut und verfügt dementsprechend über kindergerechte Sanitäranlagen, Garderoben, eine Küche, sowie eine große Dachterrasse, die exklusiv dem Mieter zur Verfügung steht.

Derzeit liegt keine Bewilligung der Stadt Wien (MA11) für einen weiterführenden Betrieb eines Kindergartens vor.

AUSSTATTUNG
Parkettboden / Kunststoffboden
Verkabelung entlang Parapet
innenliegende Beschattung
Lift
Klimaanlage
öffenbare Fenster
Alternative Nutzungsarten sind grundsätzlich ebenfalls möglich und erwünscht.

Der Mieter profitiert neben der ausgezeichneten Infrastruktur des Donauzentrums auch von der besonders guten Anbindung mit der U1 (14 Minuten zum Stephansplatz).
Das Objekt konnte
nicht geokodiert
werden.
Ansprechpartner

Milica Ljubojevic
Mobil: 00436764313691
Diese E-Mail-Adresse ist vor Spambots geschützt! Zur Anzeige muss JavaScript eingeschaltet sein!
Provided by TopREAL
 
     
Vorname
Nachname
E-Mail
Telefon
Straße
PLZ/Ort
Bemerkungen
 

Wir nutzen Cookies auf unserer Website. Einige von ihnen sind essenziell für den Betrieb der Seite, während andere uns helfen, diese Website und die Nutzererfahrung zu verbessern (Tracking Cookies). Sie können selbst entscheiden, ob Sie die Cookies zulassen möchten. Bitte beachten Sie, dass bei einer Ablehnung womöglich nicht mehr alle Funktionalitäten der Seite zur Verfügung stehen.