Immobiliensuche

DETAILSUCHE
Büro
Industrie/Logistik
Geschäftsfläche
Anlageobjekt
Wohnung
Haus
Grundstück
Kauf      Miete
Wien
Wien Umgebung







































Burgenland
Niederösterreich
































Kärnten
Oberösterreich

























Salzburg
Steiermark






















Tirol
Vorarlberg


















Ausland
Fläche:
von bis
Preis:
von bis
Preis pro m²:
von bis
Zimmer:
von bis
Details




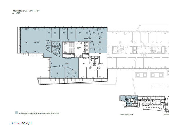
Großzügige Büroflächen in 1120 Wien zu mieten
Objektnummer 353/11255
Objektart Büro
Adresse 1120 Wien
Nutzfläche 667,00 m²
Stock 3
Bruttomiete inkl. 20% USt. € 17.048,52
Nettomiete € 10.338,50
BK Netto € 3.868,60
USt. € 2.841,42
Energieausweis Klasse B, HWB 33,98 kWh/m²a
Klasse fGEE A, fGEE 0,77
Im Forum Schönbrunn, einem modernen Business-Hotspot in Top-Lage Wiens, steht eine schöne Büroflächen mit ca. 670 m² zur Verfügung. Das Gebäude besticht durch zeitgemäßes Design, moderne Infrastruktur und eine optimale Anbindung. Die erstklassige Lage nahe dem Schloss Schönbrunn bietet eine perfekte Kombination aus urbaner Infrastruktur und repräsentativem Ambiente.

Die lichtdurchfluteten Räume überzeugen durch flexible Grundrisse, hochwertige Ausstattung und eine ausgezeichnete Verkehrsanbindung. Ob innovative Start-ups oder etablierte Unternehmen – hier finden Sie den idealen Standort für produktives Arbeiten. Ein inspirierendes Umfeld für Unternehmen, die Innovation und Effizienz großschreiben.

AUSSTATTUNG
• Sonnenschutz/Außenjalousien
• Personenaufzüge
• abgehängte Decken
• Einbauleuchten
• Doppelboden
• EDV-Verkabelung (vom Vormieter)
• Serverraum
• lichte Raumhöhe ca. 2,80m
• Teppichfliesen
• Heizung und Kühlung vorhanden
• ausgestattete Teeküchen (vom Vormieter)
• attraktive und effiziente Grundrisse (Einzel-, Kombi- oder Gruppenbüros möglich)
Das Objekt konnte
nicht geokodiert
werden.
Ansprechpartner

Milica Ljubojevic
Mobil: 00436764313691
Diese E-Mail-Adresse ist vor Spambots geschützt! Zur Anzeige muss JavaScript eingeschaltet sein!
Provided by TopREAL
 
     
Vorname
Nachname
E-Mail
Telefon
Straße
PLZ/Ort
Bemerkungen
 

Wir nutzen Cookies auf unserer Website. Einige von ihnen sind essenziell für den Betrieb der Seite, während andere uns helfen, diese Website und die Nutzererfahrung zu verbessern (Tracking Cookies). Sie können selbst entscheiden, ob Sie die Cookies zulassen möchten. Bitte beachten Sie, dass bei einer Ablehnung womöglich nicht mehr alle Funktionalitäten der Seite zur Verfügung stehen.